Pour 2026, ce projet vous offre la possibilité d’acquérir une charmante villa située dans les hauteurs de Vollèges, vous permettant de profiter du calme d’un quartier résidentiel ainsi que d’une jolie vue sur les montagnes voisines.
La construction a déjà débuté et la maison n’attend plus que vous. Elle se distribue comme suit :
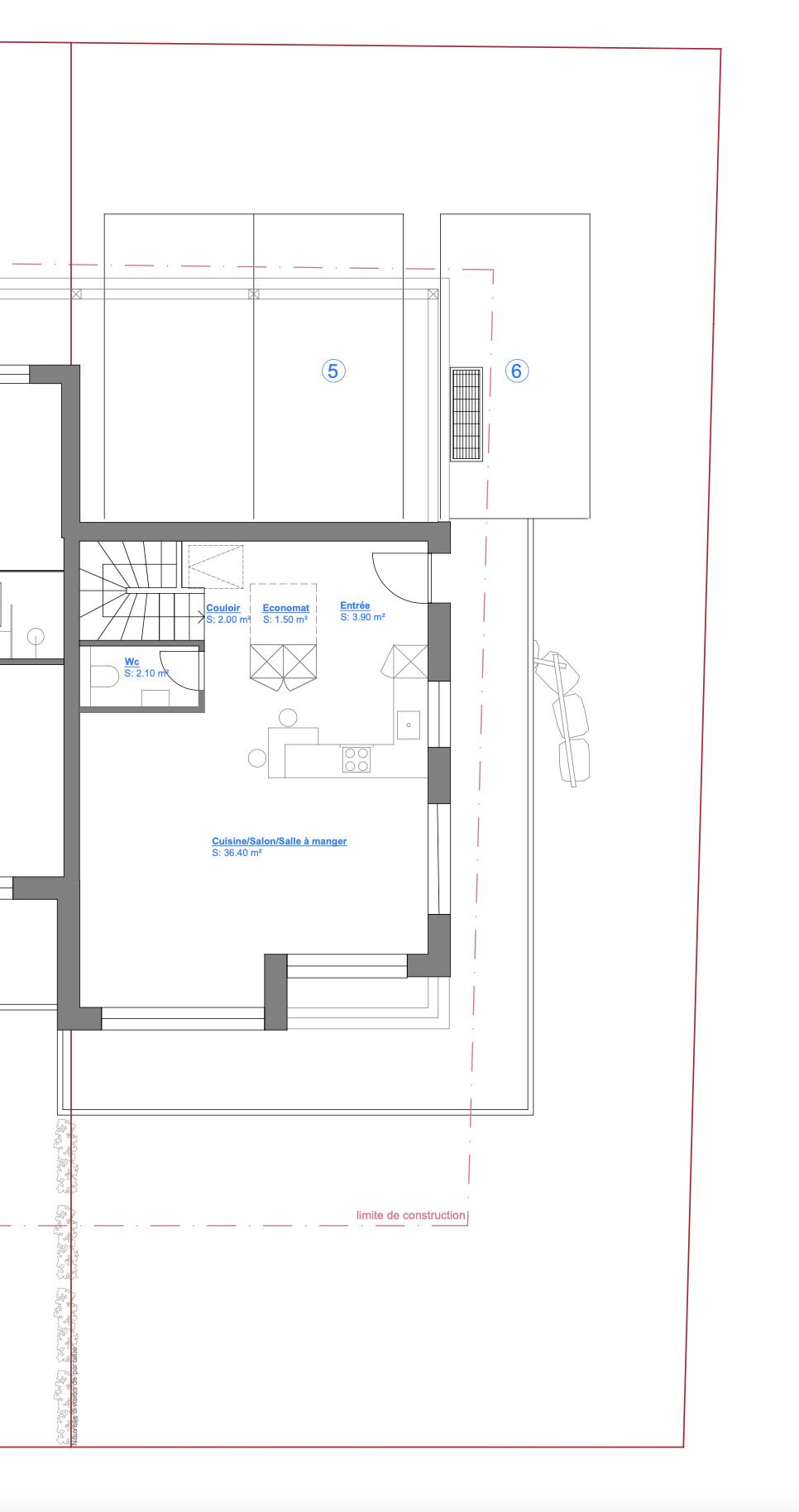
Rez supérieur :
- Entrée principale
- Cuisine ouverte sur un vaste séjour / salon lumineux
- WC visiteurs
- Grand balcon d’environ 30 m²
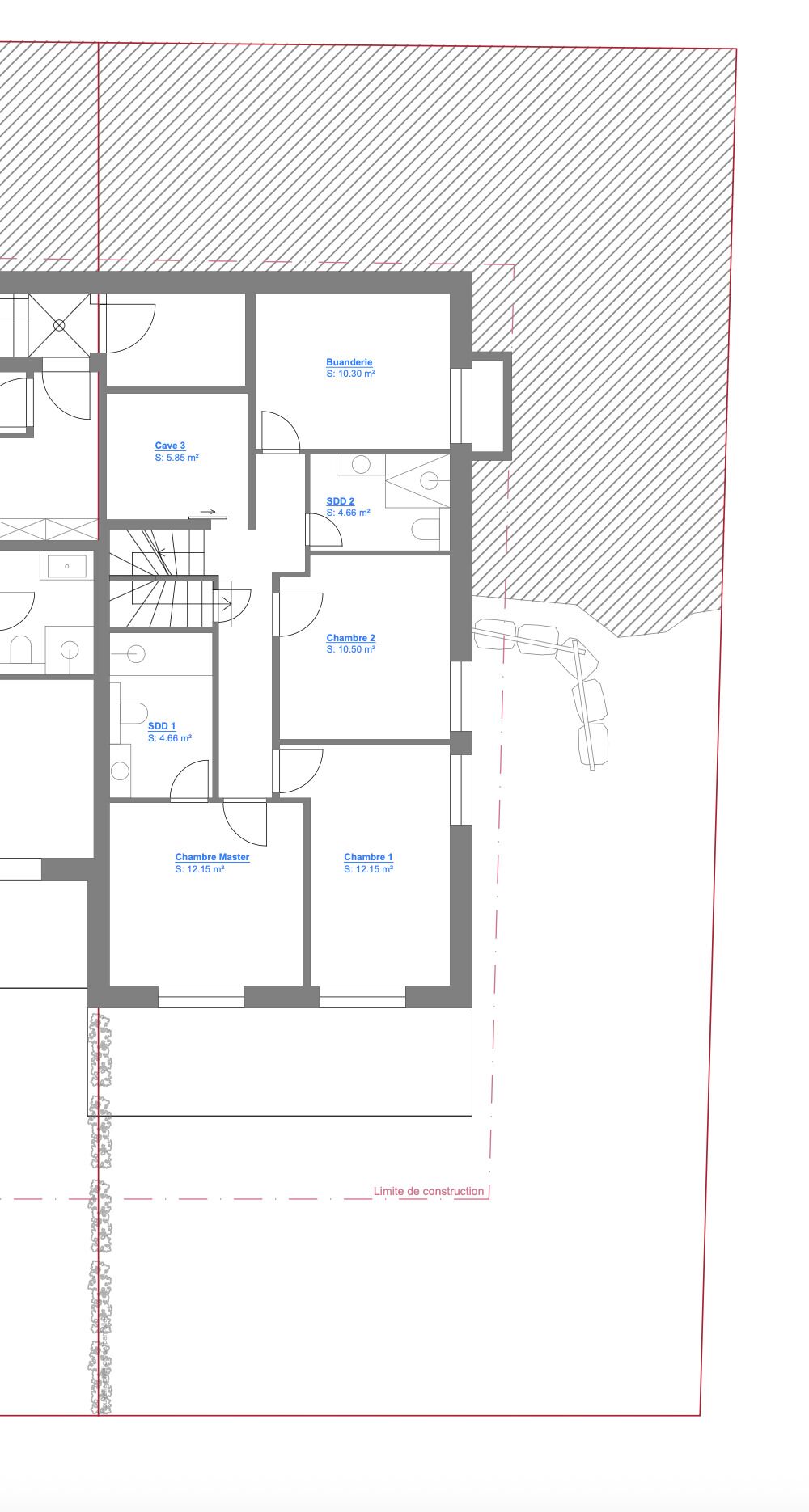
Rez inférieur :
- Entrée secondaire possible par la cave
- Deux chambres
- Une salle de douche
- Une chambre parentale avec salle de bains
- Buanderie
- Accès à la terrasse depuis la chambre parentale
